Trio Series
A simple home, place to retire or place to gather. The Trio series offers something for everyone.

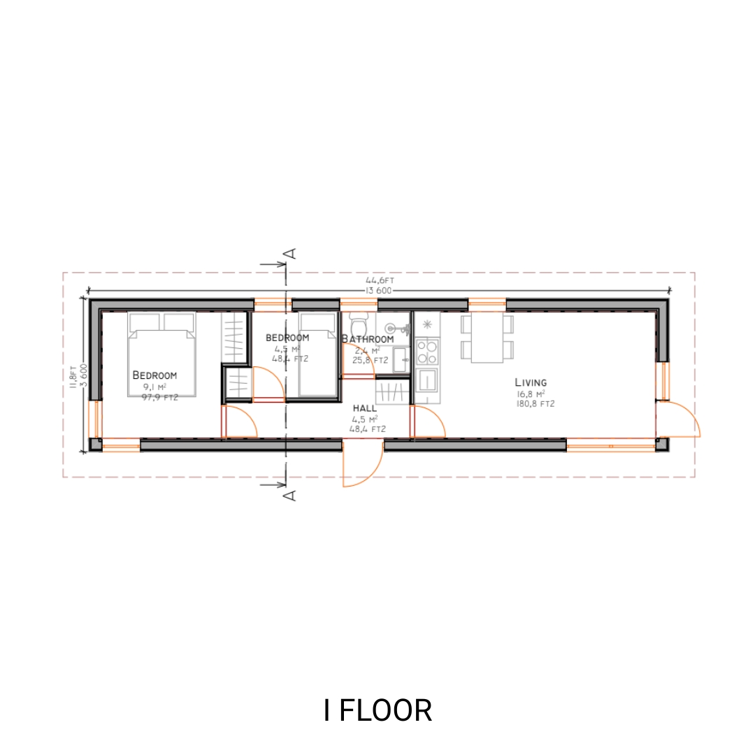
duo Series
Lake home, mountain cabin or short term rentals.

Solo+ Series
A tiny home, art studio, workshop, office, or home gym? The Solo series is as creative as you are.

double Series
Our engineers have combined our trio 75 and duo 57 into one house creating a spacious living area and wellness unit with sauna to the other wing.

Double A-Frame
Combine the Trio 75 and Duo 57 into one house.
Bedrooms
4.5
House footprint
16,98m x 8,2m
Bathrooms
2.5
Total floor area
115.4
classic Series
We have put a lot of thought and effort into developing efficient, affordable and functional A-frames. It’s time to extend the same courtesy to classic house models.




Classic G105
124.6m²
FLOORS: 1 + attic
BATHROOMS: 1.5
BEDROOMS: 3
Starting price
€ 22,900
















































